When a coating industry customer sent an initial “sketch-level” concept for large stainless-steel tanks, our engineering team transformed the idea into a validated, build-ready design. The application involved sulfuric acid, a strong highly corrosive mineral acid with powerful dehydrating and oxidizing properties, and significant structural loads, making robust engineering essential.

Initial Tank Sketch
Why Finite Element Analysis (FEA) Matters
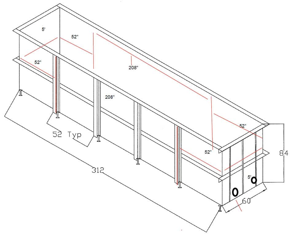
The largest of the five open-top tanks measures 312″ L x 84″ W x 84″ D with a 9,500-gallon capacity. The other four are 12” narrower. The ¼” thick shells, top rim and nozzles are all grade 316 stainless steel, and structural steel supports are 304 stainless steel. Filled with sulfuric acid (≈1.83 g/cm³), the hydrostatic pressure and a ~20,000-lb rim load demanded more than rule-of-thumb design. Abtrex design engineers used Finite Element Analysis (FEA) to simulate combined fluid, gravity, and rim loads and visualize stress and deflection throughout the structure.
FEA breaks a structure into small elements, applies loads and constraints, and calculates stress and deflection. This process allowed our team to identify overstressed regions and optimize the beam layout for safety and cost efficiency.
Design Study Results
The initial concept used six longitudinal beams, but FEA revealed excessive mid-span stress and deflection. Under combined hydrostatic pressure (increasing toward the floor) and the applied ~20,000‑lb rim load, color maps showed critical zones forming near the center while displacement plots indicated the top mid‑span bowing nearly an inch in the early iterations.
To correct this, our engineers added a central beam and redistributed supports inward from the corners, where members had behaved more like “table legs” than effective structural stiffeners, then iterated beam positions until the stress field became uniform. Animated load cases (fluid head + rim load, with floor constraints) confirmed the progression from low stress (blue) to acceptable operating levels (green) as the optimized layout engaged. The final configuration reduced peak stress to ~19,000 psi, well below the 30,000 psi yield strength, and limited deflection to 0.3 inches, even assuming a completely full tank. This optimization was crucial because stainless steel is significantly more expensive than mild steel, making material efficiency a priority.

Sulfuric Acid Open Top Tank
Corrosion Protection
One of the five tanks receives a rubber lining to provide a protective layer against corrosive elements. Abtrex applies a ¼-inch bromobutyl rubber lining after abrasive blasting the metal surface to achieve a 2‑mil angular anchor profile. This process ensures proper adhesion and delivers long-term performance under high abrasion and chemical exposure. The added protection complements the stainless-steel construction, extending service life under harsh chemical and environmental conditions.
Every tank undergoes dimensional verification, 100% visual weld inspection by our in-house certified welding inspector (CWI), and liquid dye penetrant testing of shell welds. These steps, combined with Abtrex’s expertise in rubber linings, fabrication, and corrosion resistant solutions, ensure long-term reliability under a wide range of environmental conditions.
If you are ready to optimize your next project, contact the Abtrex engineering team to discuss custom-engineered solutions for stainless steel tanks, corrosion protection, and advanced design services.

Open Top Tank After Autoclave Cure

Rubber Lined Open Top Tank



